- 豊富な実績と経験で、
複雑かつ専門的な不動産をトータルサポート 
-
- 宅地建物取引士
- 日本不動産仲裁機構ADR調停人候補者
- 賃貸不動産経営管理士
- 住宅ローンアドバイザー
- 定借プランナー
- 環境社会検定(エコ検定)登録者
- ファイナンシャルプランナー2級
- 不動産コンサルティングマスター
- 競売不動産取扱主任者
- 任意売却取扱主任者
- 任意売却エージェント
- 相続知識検定マスター
- 既存住宅アドバイザー
- 相続鑑定士
- 空き家マイスター
- 小型船舶操縦免許1級
- 野菜ソムリエ
- JUIDA認定無人航空機(ドローン)操縦士
愛知県名古屋市で競売代行や任意整理などの不動産コンサルタントを行っています久野です。
愛知県全域(名古屋、春日井、瀬戸、津島、一宮、犬山、半田、岡崎、安城、豊田、豊橋など)に加え、 三重県四日市市支部管轄(四日市市、三重郡、桑名市、いなべ市、桑名郡、員弁郡)、 岐阜地方裁判所本庁管轄(岐阜市、各務原市、羽島市、岐南町、笠松市)でコンサルタント業務を行っております。
愛知県全域(名古屋、春日井、瀬戸、津島、一宮、犬山、半田、岡崎、安城、豊田、豊橋など)に加え、 三重県四日市市支部管轄(四日市市、三重郡、桑名市、いなべ市、桑名郡、員弁郡)、 岐阜地方裁判所本庁管轄(岐阜市、各務原市、羽島市、岐南町、笠松市)でコンサルタント業務を行っております。
リエゾンはチーム制。
すべて専門家・有資格者だから
不動産に関するすべてのことが安心して相談いただけます。
不動産業者の皆さまへ
リエゾン培ったノウハウで
競売物件事業を全面サポート!
リエゾンでは、競売物件事業での業務提携を行っていただける不動産事業者様を募集しています。
競売物件事業を進めたいもしくは行っているけれども、進め方が分からない、手続きが煩雑などの理由で躊躇されているかた、専門家チームとともに豊富な実績と経験のリエゾンと業務提携はいかがでしょうか?
競売物件の落札から移転登記や抵当権等の抹消登録などスムーズに業務をさせていただきます。
少しでもお考えの方、詳しい説明にお伺いいたしますので、是非一度お問い合わせください。
お問い合わせはメールフォームもしくはお電話にてお問い合わせください。
ローンシミュレーター毎月の返済額を簡単に計算できます
仲介物件
オススメの仲介物件をお届けします
一般財団法人 不動産流通支援機構会員
住宅ローンの滞納、延滞、破綻、督促状、差押、競売、担保割れ・・・
任意売却の専門家であるリエゾン株式会社がスムーズに解決します!
仲介物件情報 最終更新日 2026年04月17日
新築一戸建て
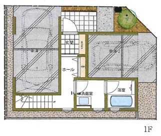
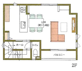
名古屋市昭和区吹上 3LDK (59.68㎡)
-
昭和区吹上戸建 1号棟
5,380万円
ビルトイン車庫2台 ※車庫面積:20.50㎡ / 1階面積内
物件番号 20260205
最終更新日 2026年02月12日
- 物件番号
- 20260205
- 物件名
- 昭和区吹上戸建 1号棟
- 物件価格
- 5,380万円
- 所在地
- 名古屋市昭和区吹上町1丁目32番1
- 交通
- 地下鉄桜通線 / 吹上駅 徒歩8分
- 土地面積
- 59.68㎡
- 建物面積
- 110.56㎡
- 間取り
- 3LDK
- 建ぺい率
- 60%
- 容積率
- 200%
- 築年月
- 2026年4月中旬(予定)
- 構造
- 木造
- 管理形態
- -
- 都市計画
- 市街化区域
- 用途地域
- 第一種住居地域
- 地目
- 宅地
- 土地の権利
- 所有権
- 法令上の制限
- 準防火地域
- その他制限事項
- 31m高度地区・緑化地域・都市機能誘導区域内・居住誘導区域内(要安全配慮区域)
- 入居可能日
- 不可
- ペットの飼育
- 不可
- 現況
- 未完成
- リフォーム
- -
- 引渡し
- 2026年4月中旬(予定)
- 備考
- 中部電力・都市ガス・公営水道・公共下水
最新の競売物件チラシ最新の競売物件(チラシ掲載分)をご紹介しています
最新の競売物件(チラシ掲載分)
仲介物件
オススメの仲介物件をお届けします
一般財団法人 不動産流通支援機構会員
住宅ローンの滞納、延滞、破綻、督促状、差押、競売、担保割れ・・・
任意売却の専門家であるリエゾン株式会社がスムーズに解決します!
仲介物件情報 最終更新日 2026年04月17日
新築一戸建て
名古屋市昭和区吹上 3LDK (59.68㎡)
-
昭和区吹上戸建 1号棟
5,380万円
ビルトイン車庫2台 ※車庫面積:20.50㎡ / 1階面積内
物件番号 20260205
最終更新日 2026年02月12日
- 物件番号
- 20260205
- 物件名
- 昭和区吹上戸建 1号棟
- 物件価格
- 5,380万円
- 所在地
- 名古屋市昭和区吹上町1丁目32番1
- 交通
- 地下鉄桜通線 / 吹上駅 徒歩8分
- 土地面積
- 59.68㎡
- 建物面積
- 110.56㎡
- 間取り
- 3LDK
- 建ぺい率
- 60%
- 容積率
- 200%
- 築年月
- 2026年4月中旬(予定)
- 構造
- 木造
- 管理形態
- -
- 都市計画
- 市街化区域
- 用途地域
- 第一種住居地域
- 地目
- 宅地
- 土地の権利
- 所有権
- 法令上の制限
- 準防火地域
- その他制限事項
- 31m高度地区・緑化地域・都市機能誘導区域内・居住誘導区域内(要安全配慮区域)
- 入居可能日
- 不可
- ペットの飼育
- 不可
- 現況
- 未完成
- リフォーム
- -
- 引渡し
- 2026年4月中旬(予定)
- 備考
- 中部電力・都市ガス・公営水道・公共下水
今海外の不動産登記が人気です。
金融商品のご案内など無料セミナーを開催中
グローバルサービス
海外ビジネス資産運用・不動産物件のご案内
INFORMATIONお知らせ
新着情報
- 23.09.14
- 【愛知】任意売却に強いおすすめの不動産会社に紹介されました。
- 23.05.01
- 「肉めしあいち」の開催が決定いたしました
- 23.02.01
- 「手羽先サミット2023」の開催が決定いたしました
- 17.02.13
- 「FKR賞」サポート落札部門第1位をいただきました。(2年連続受賞)
- 16.03.03
- 「FKR賞」サポート落札部門第1位をいただきました。



























